10 lakóegységes üdülőház Siófok Ezüstpartján eladó

2363 Nyomtatás Ajánlás Facebook

Kedves Érdeklődő!

Siófok Ezüstpart városrészén, a Balatontól 5 perces sétatávolságra kínálok megvételre egy önálló 971 m²-es telken elhelyezkedő 10 önálló lakóegységes üdülőházat. A 2019-ben teljes körű felújításon átesett ingatlan hasznos alapterülete 600 m², amely egy 4 szintes (pince, földszint, emelet, tetőtér) főépületből, és egy 100 m²-es melléképületből áll.

A felújítás során az épület teljes víz- és villanyhálózata megújult, új műanyag hőszigetelt nyílászárók kerültek beépítésre (redőnnyel és rovarhálóval ellátva), 16 cm-es grafitos hőszigetelést kapott, valamint minden szobába hűtő-fűtő klímák kerültek telepítésre.

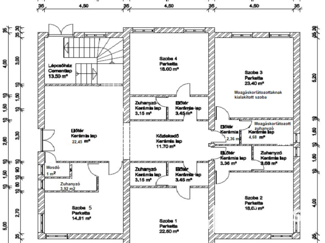
Az üdülőház földszintjén (176 m²) egy recepció, 5 teljesen különálló szoba (2-3 és 4 ágyasak) előtérrel és saját zuhanyzós fürdőszobával, valamint a közlekedő helyezkedik el. Az első emeleten (169 m²) további 5 lakóegység (szoba, előtér, fürdőszoba) és egy közösségi tér található. A szobák méretéből adódóan akár párok, akár családok, akár kisebb baráti társaságok is rendszeres visszatérő vendégek. A teljes kihasználtság esetén akár 28-30 vendég is fogadható egyidejűleg.

A tetőtérben jelenleg 2 önálló szoba (saját zuhanyzós fürdőszobával) található, amelyet általában a személyzet használt, de kisebb átalakítás után akár ez a szint is tud vendégeket fogadni. Az épület alagsorában egy 90 m²-es pince van, amely jelenleg táróként funkcionál, de akár egy közösségi tér, vagy esetleg wellness részleg is kialakítható belőle.

A telken a főépület mellett egy 100 m²-es különálló épület helyezkedik el, amelyben a konyha és a közösségi étkező kapott helyet. Itt akár reggeliztetésre is van lehetőség, de kisebb ráfordítással újabb 2 apartman alakítható ki belőle. Az üdülőházhoz 8 autó részére saját zárt parkoló tartozik, és további autóbeállási lehetőség is biztosított az udvarban. Végül de nem utolsó sorban egy 3,3 x 6,3 méteres medence fokozza az itt pihenők kényelmét!

Főbb jellemzők:
- összesen 10 szoba, 2 nappali és 10 fürdőszoba, közösségi konyha és étkező
- a lakótér ízlésesen berendezett és teljesen felszerelt
- a főépülethez tartozik egy pince, saját tároló, valamint egy melléképület is
- luxus kiegészítők: medence, kert fúrt kúttal, udvari gépjárműbeálló lehetőség, kamera rendszer
- klimatizált belső tér, külső hőszigeteléssel a maximális komfort érdekében
- új víz- és villamoshálózat garantálja a biztonságos és energiahatékony ellátást

A környék jó infrastruktúrával rendelkezik, könnyen megközelíthető a belváros, és a szabadstrand is, valamint változatos szabadidős tevékenységeket kínál. Az ingatlan a képeken látható teljes berendezéssel és felszereléssel kerül értékesítésre, amely a vételár részét képezi. Mivel minősített szálláshelyként funkcionál, akár a teljes vendégkörrel és a jelenleg meglévő foglalásokkal együtt kerül átadásra.

Ne hagyja ki ezt a kivételes lehetőséget! Vegye fel velünk a kapcsolatot további információkért és személyes megtekintésért!

Jobbágy Zsolt
PRÉMIUM

Jobbágy Zsolt

Ingatlanértékesítő
Siófok
+36 (30) 331 3229
Észrevétel a hirdetéssel kapcsolatban
Egy ingatlanos naplója