Déli városrészben, ipari övezetben, Telephely eladó!

1538 Nyomtatás Ajánlás Facebook

Eladó Telephely Nagykanizsán - Kiváló befektetési vagy vállalkozási lehetőség!

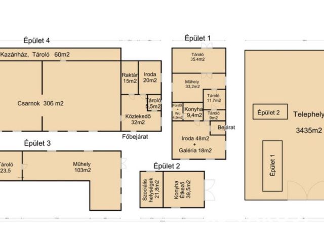
Nagykanizsa Déli városrészében, Ipari Övezetben vált eladóvá, ez a közel 3500m2-es Ipari ingatlan. Az udvarban 4 fő épület található, melyek mind külön bejárattal rendelkeznek. (Összterületük megközelítőleg 800m2.)
A telek hátsó szegmensében kisebb tárolók és fedett helységek is megtalálhatók.
Az évek során sok felújítási munkálatokat végeztek az épületekben a tulajdonosok.
Amik elkészültek:
- A teljes telephely, villamos hálózata felújításra, kicserélésre került, így már elérhető a 3 x 100 Amper, mely felosztása épületekként változik. (3x 25 C , 3 x 25 C, valamint 3 x 50 A)
- A komplett telephely fűtése, akár fa tüzelésű központi fűtéssel akár egyedi gáz cirkó fűtéssel megoldható. Minden épület egyedi órákkal felszerelt így akár igény szerint is külön-külön is üzemeltethetők. (Bérbeadás szempontjából fontos)
- Az alaprajzon látható 1-2-4 es épületek teljesen klimatizáltak.
- A 3-4 es épületek tetőhéjazatának a cseréje is megtörtént.
- Homlokzati nyílászárok részben cserélve lettek, műanyag profilszerkezetűre.
- Telephely teljes közművel rendelkezik.
Az udvaron számos autó parkolólehetőség található valamint a nagyobb teherautók behajtása sem probléma.
Az épületek mind tégla épületek, jó válaszfalas elrendezéssel, melynek köszönhetően igény szerint jól alakíthatók a belső terek.
Ha Ön szeretne egy jó befektetési lehetőséget, vagy saját vállalkozásának keres Ipari ingatlant, akkor ez a komplexum kiváló választás lehet.
A hirdetési ár NETTÓBAN értendő, nem Áfás.
Igény szerint az ingatlan kiadó is, a bérleti díj megegyezés kérdése!
FONTOS: tulajdonosi kérésre az épület megtekintése csak és kizárólag előre egyeztetett időpontban megoldható csak is az ingatlanirodán keresztül!!!
Iroda: Nagykanizsa Platán sor 7

Hohl József
PRÉMIUM

Hohl József

10 éve a Városi Ingatlaniroda tagja
Régióigazgató, ingatlanértékesítő
Nagykanizsa
+36 (30) 608 6857
Észrevétel a hirdetéssel kapcsolatban
Egy ingatlanos naplója