Füleki úton 76 nm-es üzlethelyiség kiadó!

4192 Nyomtatás Ajánlás Facebook

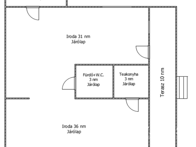
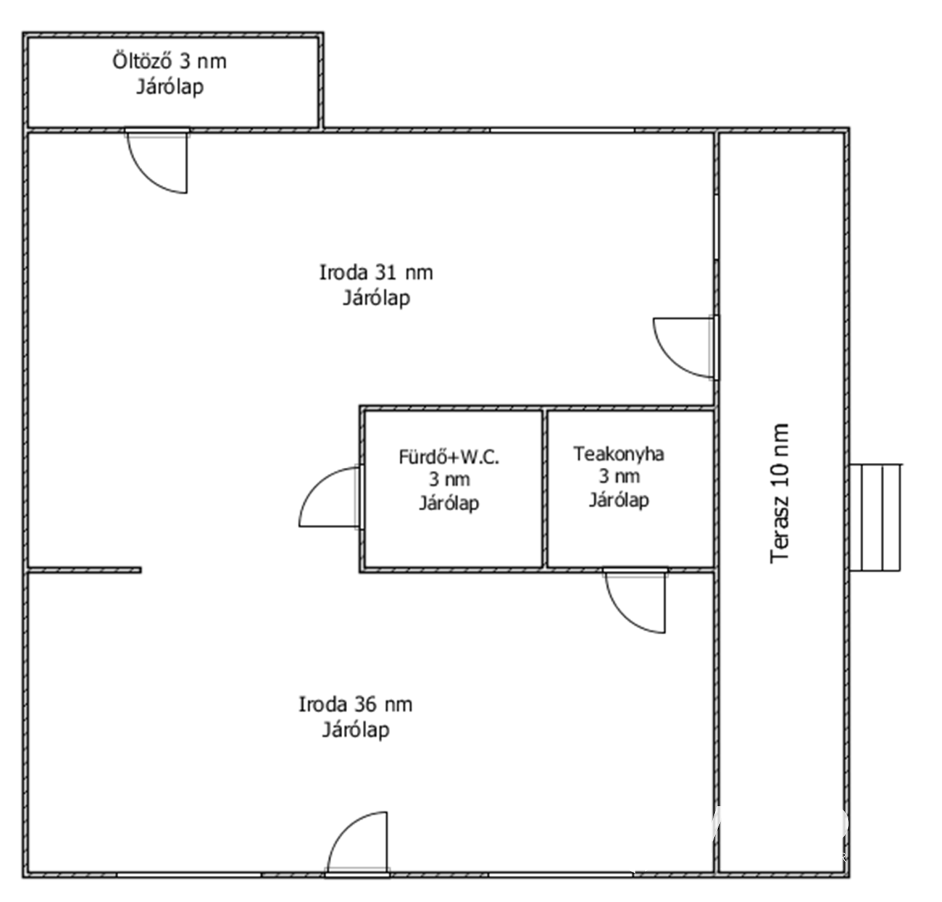
Nógrád megye, Salgótarján (Belváros), utcai bejárattal rendelkező, 76 nm-es, felújított, klimatizált, kamera -és riasztórendszerrel ellátott, korszerű üzlethelyiség hosszú távra kiadó!

Az ingatlan a város forgalmas részén, a Füleki úton található, bármilyen kereskedelmi vagy szolgáltató tevékenység folytatására maximálisan alkalmas lehet.

Az ingatlanban üzlettér, teakonyha, zuhanyzós fürdőszoba és öltöző található.

A bérleti szerződés feltétele 2 havi kaució és 1 havi bérleti díj megfizetése.

Tatár Tamás
PRÉMIUM

Tatár Tamás

8 éve a Városi Ingatlaniroda tagja
Régióigazgató
Salgótarján
+36 (70) 439 8123
Észrevétel a hirdetéssel kapcsolatban
Egy ingatlanos naplója