Két lakásos családi ház teljes szuterénnel eladó

19632 Nyomtatás Ajánlás Facebook

Kétgenerációs családi ház teljes szuterénnel eladó Felsőpakonyon!

Felsőpakony központhoz közeli részén eladó egy 212 m²-es, 3 szintes két lakásos családi ház, 585 m²-es telken.

Főbb jellemzők:
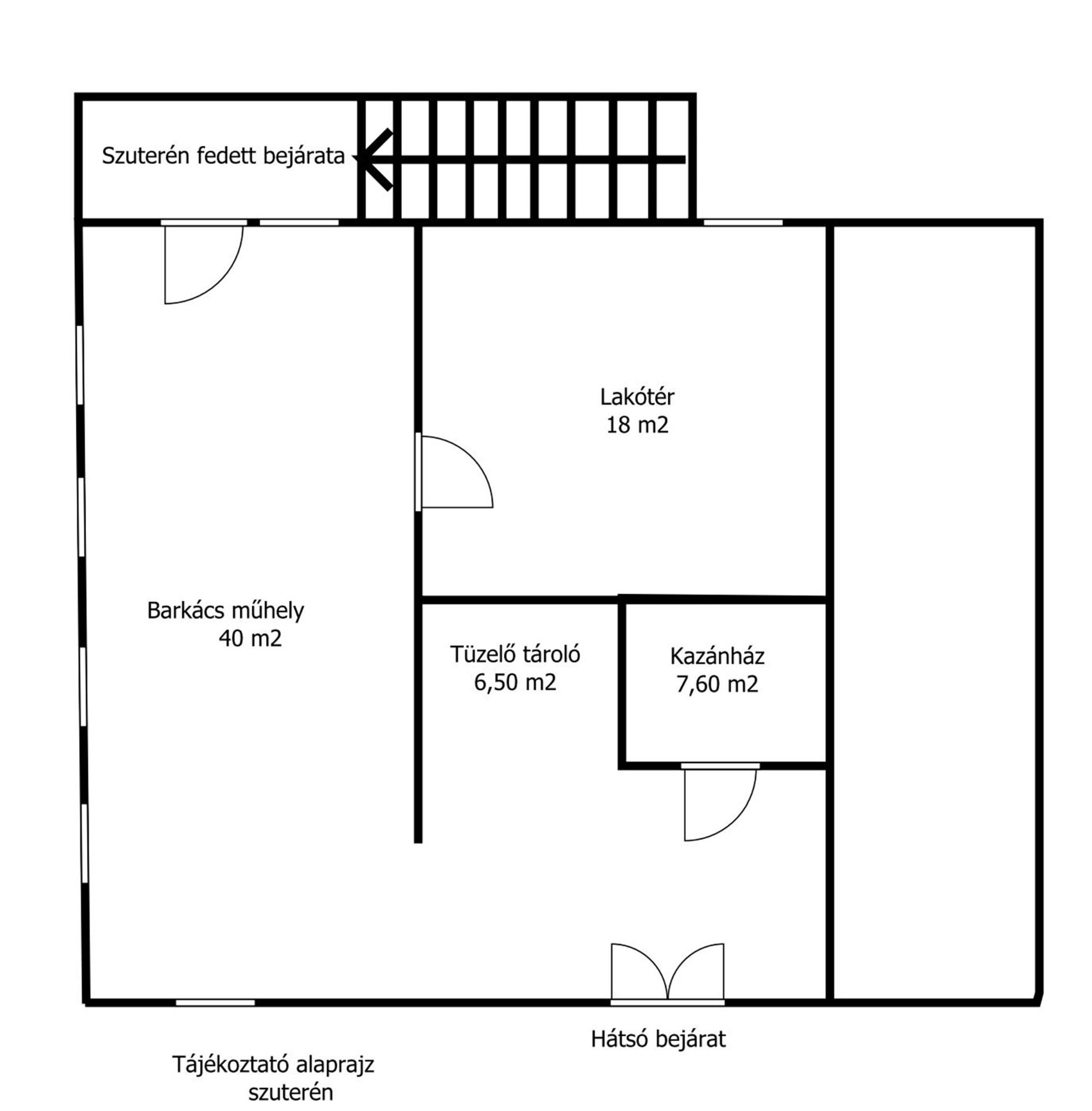
-Két lakás, fsz 92 m2, tetőtéri 48 m2, külső feljáróról közelíthető meg, de igény szerint a belső feljáró visszanyitható.
Külön mérőórákkal – ideális kétgenerációs együttéléshez vagy befektetésnek.
- 72 m2 Szuterén ipari árammal) – korábban műhelyként működött, többfunkciós hasznosítási lehetőséggel.
- Dupla bejárat (első és hátsó).
- Fűtés: földszinti lakás gázcirkó + vegyes tüzelésű kazán (jelenleg üzemen kívül).

Földszinti lakás ( 92 m²):
• Amerikai konyhás nappali fatüzeléses kandallóval
• Déli tájolású télikert (korábban fedett terasz)
• Hálószoba, fürdőszoba, külön WC
• Közlekedő és tároló

Tetőtéri lakás ( 48 m²):
- 2 szoba
- Nappali–konyha–étkező
- Fürdőszoba–WC tágas, világos nagy ablakos, korábban szoba volt,
- 3,5 kW inverteres klíma a nappaliban
- Külső feljáróról megközelíthető

- Szintenkénti tájékoztató alaprajzok a képek között megtalálhatók,
- Feljáró alatti 4 m²-es tároló
- Sóskúti kőburkolat az egész házon, homlokzata időtálló,
- tégla falazat, fa födém, zsindely tető
- Egyedi gyártású fa nyílászárók hőszigetelt üvegezéssel
- Beépített bútorok és konyhabútorok a vételár részét képezik
- Két autóbejáró, több felszíni beálló + könnyűszerkezetes garázs
- Fúrt kút hidrofor házzal a kert gazdaságos fenntartásához

Elhelyezkedés:

A településen bevásárlási lehetőségek és közintézmények is megtalálhatók, vasúti közlekedés biztosított, Budapest mindössze 20 km-re. Gyál 7 km, 10 perces autóút.

Egyéb lehetőség:

Kisebb ingatlan 20 km-en belül beszámítható!

Meszesánné Márki Ildikó
PRÉMIUM

Meszesánné Márki Ildikó

12 éve a Városi Ingatlaniroda tagja
Ingatlanértékesítő
Gyál
+36 (20) 388 3540
Észrevétel a hirdetéssel kapcsolatban
Egy ingatlanos naplója