Kétgenerációs téglaház a Jókain.

4952 Nyomtatás Ajánlás Facebook

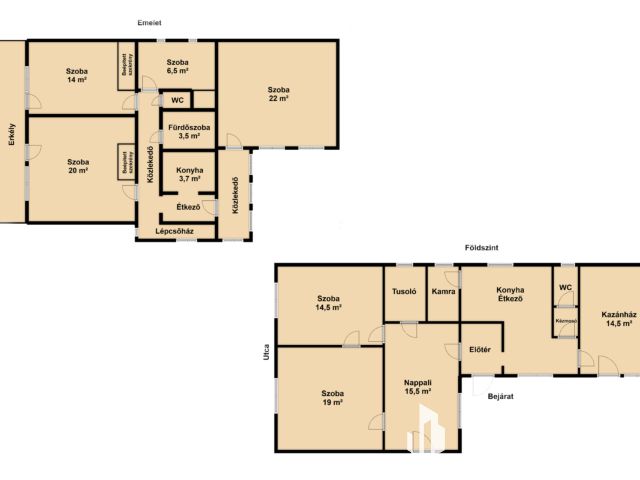
Hódmezővásárhelyen a Jókai utcában kétgenerációs 180 m²-es téglaházat 567 m²-es telken ajánlom megvételre. Két különálló bejáratú lakrész de a közös bejárat is ki lett alakítva. Hasznos alapterülete 180 m², melyből az alsó épület 85 m² az emelet pedig 95 m².
A víz és az áram mindkét lakrésznél külön órával rendelkezik.
Fűtésük gáz-központi és vegyestüzelésű kazán. Itt nincs külön mérőóra.
Az udvar kamerával felszerelt.

A földszinti lakrész:
- 1965-ben épült
- 85 m²
- fűtése gáz-központi és vegyes tüzelésű kazán
- kettő utcára néző szoba + nappali
- konyha, étkező
- kamra
- külön helyiségben a fürdőszoba és WC
- ablakai pár éve műanyag nyílászárókra lettek cserélve

Emelet:
- 95 m²
- 1990-ben ráépítéssel épült a házra
- 3 és fél szoba került kialakításra
- szobáiban és a folyosón beépített szekrényeket találunk
- az utcai két szobából közös erkélyre jutunk
- radiátoros gáz-központi fűtés
- külön helyiségben a fürdőszoba és a WC
- konyha étkezővel
- klimatizált

További melléképületek:
- kazánház, tároló
- kamra
- kétállásos garázs, műhelyként is funkcionálhat
- a kert végében állattartásra alkalmas épületek

Ez a ház nem csupán lakóhely, hanem otthon, ahol családja számára minden adott a kiegyensúlyozott élethez. Ne hagyja ki ezt a remek lehetőséget! Vegye fel velünk a kapcsolatot még ma, és tekintse meg személyesen az Ön potenciális új otthonát Hódmezővásárhelyen!

Irodánk biztosítja ügyfeleink számára az ingatlan adás-vétellel kapcsolatos ingyenes jogi tanácsadását
Hitelügyintézönk díjmentes tanácsadással segíti a megfelelő hitel kiválasztását.

Ha kérdése van az ingatlannal kapcsolatban keressen bátran, nem fog zavarni (8-19 óráig).

Lászlóné Nagy Katalin
+36 30 264-7338

Lászlóné Nagy Katalin
PRÉMIUM

Lászlóné Nagy Katalin

6 éve a Városi Ingatlaniroda tagja
Ingatlanértékesítő
Hódmezővásárhely
+36 (30) 264 7338
Észrevétel a hirdetéssel kapcsolatban
Egy ingatlanos naplója