Kiviteli tervekkel rendelkező telek Debrecen belvárosában

11531 Nyomtatás Ajánlás Facebook

Befektetők, fejlesztők figyelem!

Debrecen Külsővásártéri részén, 8 lakásos társasház projekt lehetőséggel eladó 535 m2-es fejlesztési telek rendezett tulajdoni viszonyokkal, érvényes bontási engedéllyel. A terület előkészítettsége racionális alapot ad egy új fejlesztéshez.

Ideális lehetőség beruházóknak, ingatlanfejlesztőknek, akik egy kiemelkedő lokációban szeretnének építeni! A fejlesztési tervek szerint az ingatlan előtti környezet zöldterületté alakul, növelve a fejlesztés értékét és a lakók kényelmét.

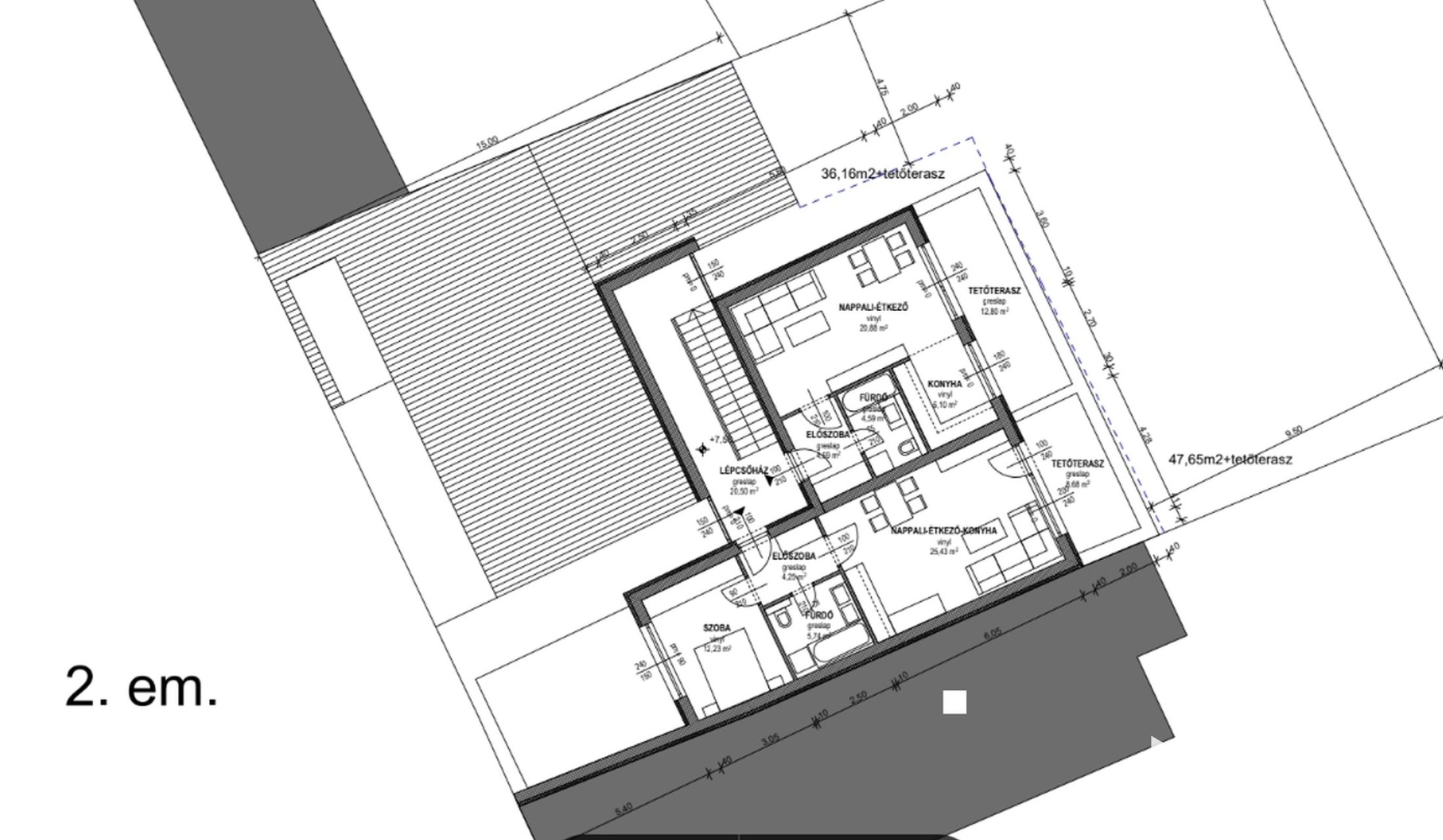
Kiviteli és látványtervekkel rendelkező építési telek eladó, vagy 8 lakásos társasház építésének megvalósulásához befektetőt (csendestársat) keresünk!

Debrecen belvárosa
- 535 m²-es építési telek
- 8 lakásos társasház építésére érvényes kiviteli és látványterv
- Övezeti besorolás: Vt-Vk
- Beépíthetőség: 60%
- Építménymagasság: 9,5 m
- Terepszint feletti szintterületi mutató 1,75
- 16 m utcafront, 30 m mélység
- látványtervek készen, mélygarázs építésére vonatkozó kiviteli tervvel együtt
- telek minden közművel ellátott.

Miért érdemes Debrecenben építeni?
- Gyorsan fejlődő város: Debrecen az ország egyik legdinamikusabban növekvő városa, folyamatosan bővülő ipari, oktatási és szolgáltatási szektorral.
- Növekvő ingatlanpiac: Az egyre nagyobb kereslet a lakóingatlanok iránt garantálja a befektetés értékállóságát és gyors megtérülését.
- Egyetemi központ: A Debreceni Egyetem vonzza a magyar és külföldi hallgatókat, akik számára a belváros közeli lakások kifejezetten keresettek.
- Kiváló infrastruktúra: Modern közlekedési kapcsolatok, autópálya, nemzetközi repülőtér és fejlett tömegközlekedés.
- Zöld jövő: A város kiemelt figyelmet fordít a zöldterületek növelésére és az élhetőbb városi környezet kialakítására.

Azonnal birtokba vehető, további információkért hívjon a hét bármely napján!

Gorzsás Zsuzsanna

Gorzsás Zsuzsanna

2 éve a Városi Ingatlaniroda tagja
Ingatlanértékesítő
Debrecen
+36 (70) 708 1730
Észrevétel a hirdetéssel kapcsolatban
Egy ingatlanos naplója