Most épül, de hamarosan már a Tiéd lehet!

1853 Nyomtatás Ajánlás Facebook

„Minőség, kényelem, érték – most még időben lefoglalhatod álmai otthonát!”
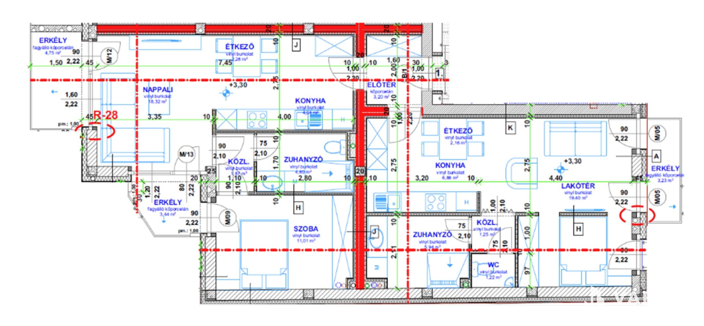
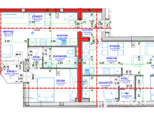
Szeged- Rókus városrészben eladásra kínálok egy újonnan épülő, korszerű társasház első emeletén található 82,17 négyzetméteres tágas lakást, 3 erkéllyel.
Az ingatlan kiváló elrendezésű, világos, és minden részletében a minőségi kivitelezést tükrözi.
A ház kiemelkedő műszaki tartalommal épül, mely garantálja az energiatakarékos, csendes és kényelmes otthont:
-Falazat: 30 cm-es klíma- és hanggátló tégla, 20 cm homlokzati hőszigeteléssel
-3 erkély, amelyek 4,75, 3,44 és 3,23 négyzetméter nagyságúak
-Nyílászárók: 3 rétegű üvegezésű, hőszigetelt műanyag ablakok és bejárati ajtó, dekorfóliás beltéri ajtók
-Fűtés és hűtés: központi hőszivattyús rendszer, egyedi hőmennyiségmérővel, padlófűtéssel és fancoil hűtéssel
-Szellőztetőrendszer, pára elszívással
-Tető: Terran Protector tetőcserép, kiváló hő- és hangszigeteléssel
- Várható befejezés: 2027. Nyár vége
A belső terek világosak és tágasak, minőségi hideg- és melegburkolatokkal kerülnek kivitelezésre.
A modern technológia, a precíz kivitelezés és az alacsony fenntartási költség együttesen garantálják, hogy ez az otthon hosszú távon értékálló és kényelmes választás lesz.
Kérlek tekintsd meg az alaprajzot az elrendezés miatt!

A társasházban elérhetőek még a következő üzlethelyiség, lakások, garázsok, árakról kérlek a lent megadott elérhetőségeken érdeklődj!

Üzlethelyiség 52,96 m²-es, 2,93 m² fedett terasszal, saját kertrésszel
1. Lakás 82,17 m2 + 11,42 m2 (erkély)
1.a Lakás 38,45 m2 +3,23 m2 (erkély)
1.b Lakás 43,72 m2+ 8,19 (erkély)
2. Lakás 44,97 m2+ 4,75+3,04 (erkély)
5.b Lakás 42,8 m2 + 3,76 m2 erkély
6. Lakás 76,87 m2 + 10,45 m2 (erkély)
6.a Lakás 42,71 m2 + 3,44 m2 (erkély)
6.b Lakás 34,16 m2+ 2,26 (erkély)
7. Lakás 44,89 m2 + 7,79 m2 (loggia, erkély)
8. Lakás 100,18 m2 + 56,56 m2 (loggia, terasz, erkély)
1. Garázs 17,10 m2
2. Garázs 22,72 m2
3. Garázs 23,25 m2
Udvari parkolók

További információ:
Járai Viktória- Prémium Ingatlanértékesítő, Hiteltanácsadó +36307053426 jarai.viktoria@varos.hu

Kulcsra kész ügyintézés – Neked csak költöznöd kell!
Lakásvásárlás előtt állsz? Nálunk nemcsak a tökéletes otthont találod meg, hanem a teljes háttérmunkát is levesszük a válladról:
-Díjmentes banki hitelügyintézés – több bank ajánlata egy helyen, személyre szabottan
-Ügyvédi háttér – biztos kezekben a szerződéskötés és a teljes jogi folyamat
-Teljeskörű támogatás – az első érdeklődéstől a birtokba adásig végigkísérünk
-Egyetlen kapcsolattartó, gördülékeny ügyintézés, maximális biztonság
Célunk, hogy a lakásvásárlás ne stressz, hanem élmény legyen!
Írj, hívj, és kezdjük el a közös munkát!
Járai Viktória- Prémium Ingatlanértékesítő, Hiteltanácsadó +36307053426 jarai.viktoria@varos.hu

Járai Viktória
PRÉMIUM

Járai Viktória

8 éve a Városi Ingatlaniroda tagja
Hiteltanácsadó, ingatlanértékesítő
Hódmezővásárhely
+36 (30) 705 3426
Észrevétel a hirdetéssel kapcsolatban
Egy ingatlanos naplója